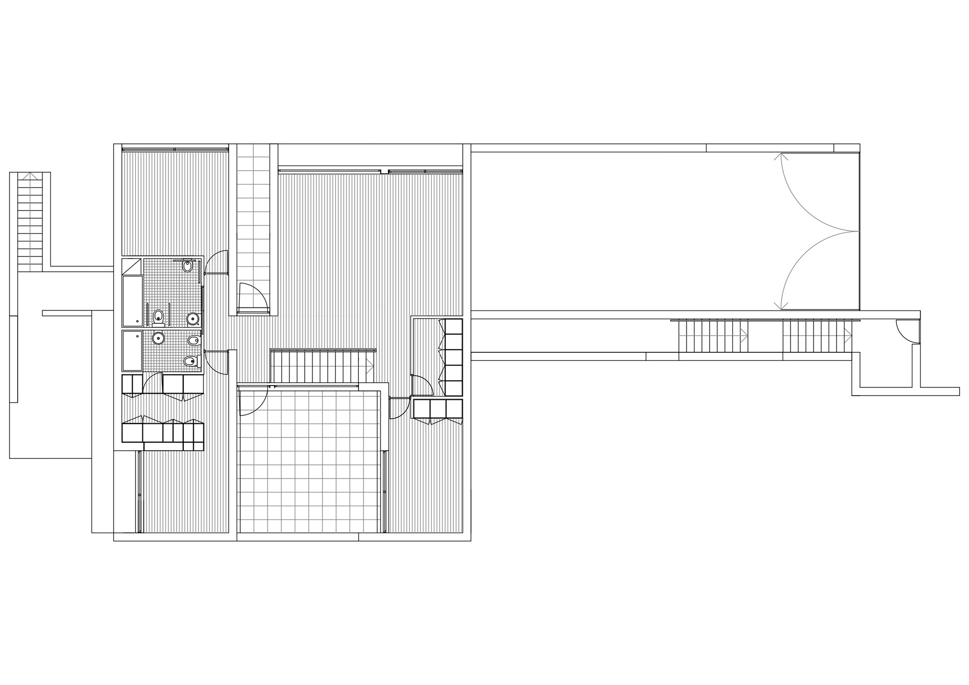
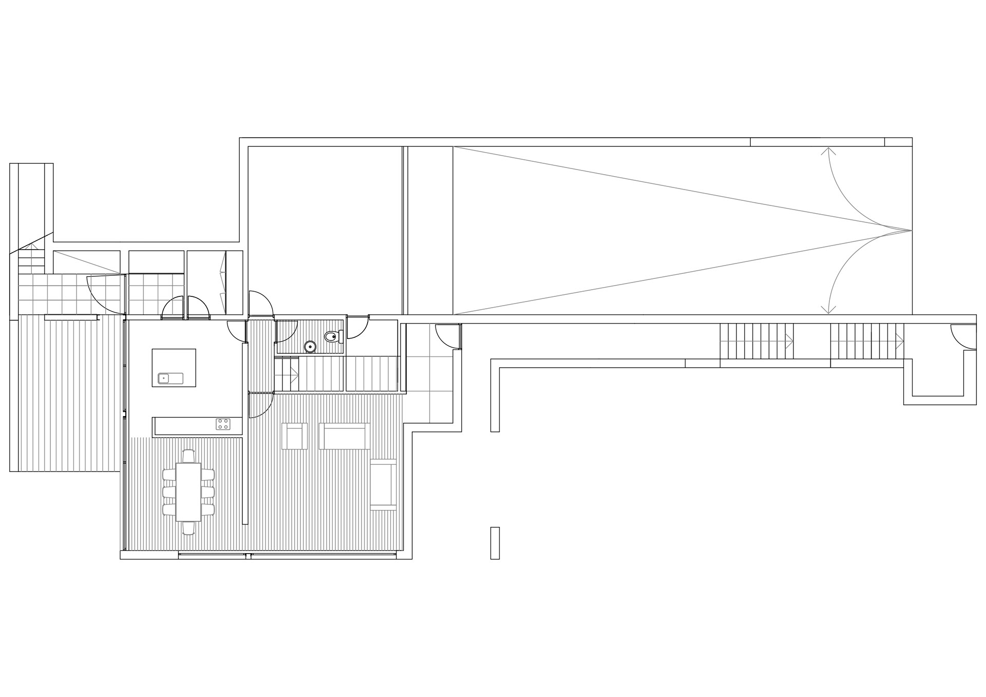
Private house in Cambeses, Barcelos, Portugal. The plot has an area of 3300 sqm, and the house 300 sqm of total area. The house is designed articulating the existing alignments and the new proposed access road, which enables both car and foot access. The social areas are at ground level and the private areas on the upper level. Construction started early 2009 and was finished in 2011.
















